EVG Pipe

VVS-Ritningar

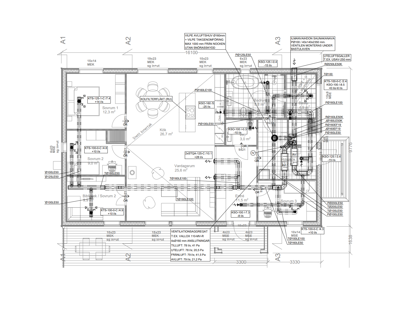
Viitala Engineering har konstruerat VVS-ritningar åt entreprenören EVG Pipe för flera villor samt för hall- och parhusbyggen. Ritningar som levereras till kunden består av kompletta ventilation-, värme-, vatten- och avloppsritningar som underlag för materialbeställningar och installationer.


Kontaktperson

Samuli Viitala
+ 46 76 101 32 45 samuli.viitala@viitalaengineering.com

Kontakta oss direkt