Vill du veta mer om våra uppdrag? Läs mer om de lösningar inom mekanisk konstruktion, 3D-skanning, VVS-konstruktion och underhållsplanering och hållfasthetsberäkning som vi har levererat.
3D-skanning
Viitala Engineering
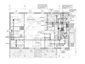
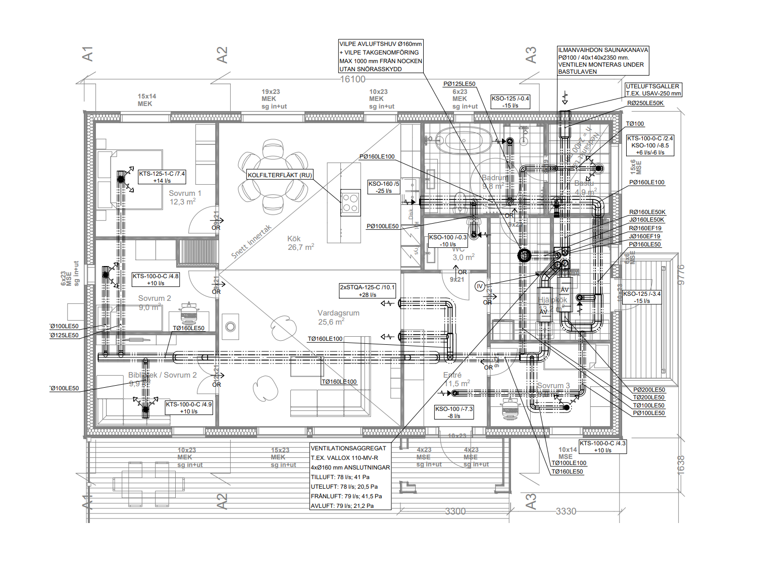
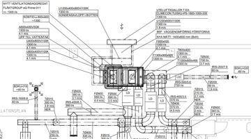
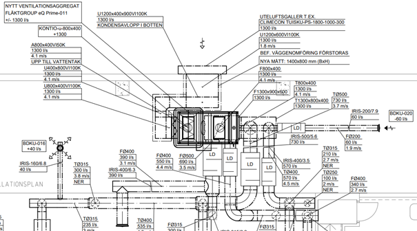
Idéer och lösningar inom mekanisk konstruktion och anläggningskonstruktion sedan 2018. Specialiserad på uppdrag inom gruvindustrin och tung industri men hjälper alla företag som vill ha hjälp med konstruktion, projektering, projektledning, hållfasthets-beräkning och CE-märkning. Viitala Engineering hjälper också till med uppdrag inom VVS-konstruktion.