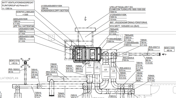
VVS-projektering

Viitala Engineering har konstruerat VVS-ritningar för ombyggnation av en lokal till ett gym i Pajala industrihus. Gymmet betjänas med ett stort roterande ventilationsaggregat som betjänar både gymdelen samt sociala delen (omklädningsrum, badrum och bastu).


Kontaktperson

Samuli Viitala
+ 46 76 101 32 45 samuli.viitala@viitalaengineering.com

Kontakta oss direkt